Details

Viel Platz für die Familie, großzügige Doppelhaushälfte in ruhiger Wohnlage von Laufen (Kauf)

NEU

<< Zurück

Hauptkriterien

  • Zimmer: 6,00
  • Wohnfläche 139,52 m²
  • Kaufpreis: 510.000,00 EUR

Objektbeschreibung

Diese gepflegte Doppelhaushälfte befindet sich in ruhiger Wohnlage der Stadt Laufen und ist der ideale Ort für Familien, die ein Zuhause mit viel Platz
und einer angenehmen Umgebung suchen.

Laufen liegt im Berchtesgadener Land im schönen Rupertiwinkel und verbindet Tradition mit Lebensqualität.
Die Stadt blickt auf eine über 1200-jährige
Geschichte zurück und begeistert mit ihrer historischen Altstadt, denkmalgeschützten Häusern, kleinen Gassen und einer imposanten Kirche.

Gleichzeitig bietet sie eine ausgezeichnete Infrastruktur:
Schulen, Kindergärten, Lebensmittelmärkte, Ärzte
und Banken sind bequem erreichbar, sodass es Familien an nichts fehlt.
Zudem profitieren Bewohner
von der Nähe zu Salzburg, das schnell über die österreichische Lokalbahn erreichbar ist. Auch mit dem Auto ist die Stadt komfortabel angebunden.

Das Erdgeschoß des Hauses überzeugt mit einem großzügigen und hellen Wohnzimmer, das direkten Zugang zur überdachten Terrasse und zum sonnigen Garten bietet. Eine separate Küche mit Fenster, ein Esszimmer, ein praktischer Abstellraum, eine Garderobe im Eingangsbereich sowie ein Gäste-WC runden das Raumangebot auf dieser Ebene ab.
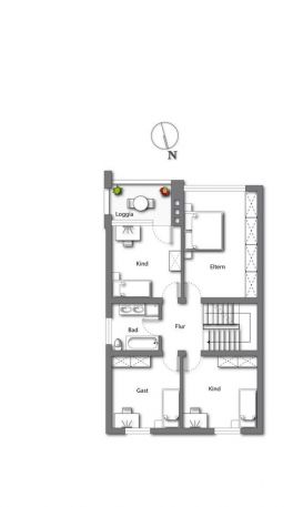
Im ersten Obergeschoß befinden sich vier gut geschnittene Schlafzimmer, von denen eines über einen Zugang zum Balkon verfügt.
Das geräumige Badezimmer mit Fenster ist mit Badewanne, Dusche, Waschbecken und WC ausgestattet.
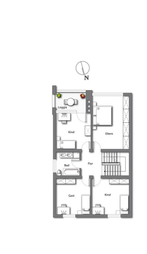
Das ausgebaute Dachgeschoß eröffnet zusätzliche Nutzungsmöglichkeiten. Es verfügt über einen Küchenanschluss sowie ein weiteres Badezimmer mit Badewanne, Waschbecken und WC. Durch zwei große Fenster wirkt der Raum hell und einladend und eignet sich hervorragend als Elternschlafzimmer, Jugendzimmer oder auch als großzügiger Hobby oder Spielbereich.

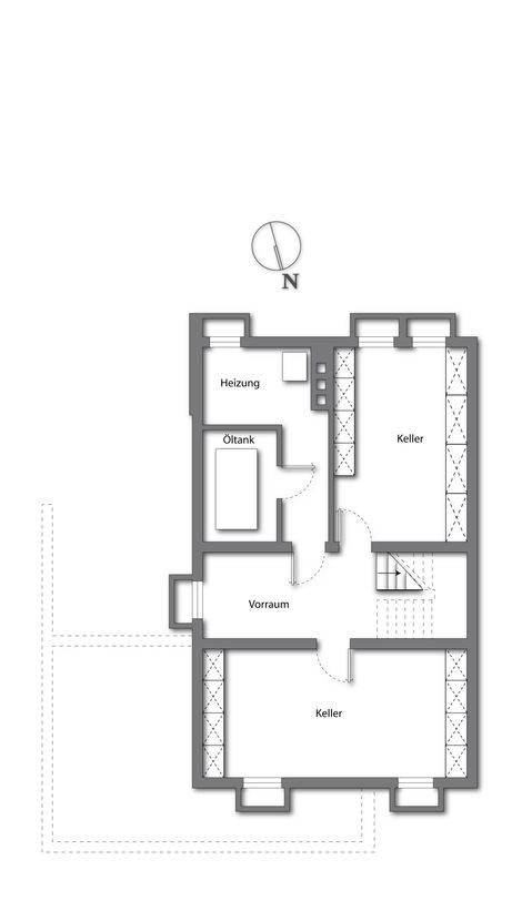
Das voll unterkellerte Haus bietet zudem reichlich Abstellfläche mit zwei großen Kellerräumen sowie eine helle Waschküche mit Fenster.

Komplettiert wird das Angebot durch eine Garage, die direkten Zugang in den Garten ermöglicht. Ein kleiner Vorgarten sowie ein überdachter Eingangsbereich verleihen dem Haus zusätzlichen Charme.
Diese Doppelhaushälfte bietet ideale Voraussetzungen für Familien, die in Laufen ankommen und sich langfristig wohlfühlen möchten.

Mehr...

* Irrtum bei Preisen sind vorbehalten!

<< Zurück